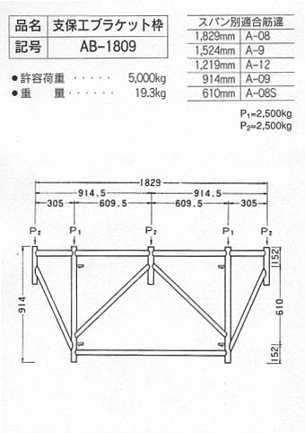
○枠組関係(1/3)
単価表 構成図